德國格屋自動門-轉角平移自動門-感應門(推拉門)compaceMaster CMW/CMW-F系列:
◆ 能夠使建筑出入口區域實現獨特設計風格的推拉門;
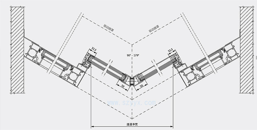
◆ 可用來實現 90° ~ 179° 之間的任意轉角;
◆ 相應的安全傳感器可以保護主關閉邊,符合 DIN 18650 標準的要求;
◆ 驅動器實際高度為 100 mm,窄框型材系統的頂端門扇型材被內置在驅動器之中,并且通過護罩將其遮蓋;
◆ 這樣就很容易將轉角推拉門內置到所有支撐結構之中,實現優美的外觀。
德國格屋自動門-轉角平移自動門-感應門(推拉門)econoMaster VMW/CMW-F系列產品供應、定制設計、安裝與維修(深圳市)乙元興自動門有限公司
服務咨詢:0755-25632912
技術參數

格屋轉角平移門-推拉門 compactMaster CMW/CMW-F 系列具有以下特性:
■ 采用雙電機技術的冗余驅動器(compactMaster CMW-F),適用于逃生和急救路徑;
■ 采用可以更換的橡膠軸承滑動面,滑動穩定性很高;
■ 驅動器實際高度只有 100 mm;
■ 開啟速度快:達到 0.9 m/s;
■ 操作簡單,一目了然;
■ 在滑車上內置鎖定裝置自學式控制系統,有多種連接和調整方法。
產品結構(示意圖)



? 2019 深圳市乙元興自動門有限公司 版權所有 粵ICP備12006120號
